Quick Links

Click on the Image thumbnails on the left to view the documents. Use the controls on the images to navigate through the gallery. To enlarge the image click on the enlarge icon. Click on the image again to return to the gallery.

Click here to download a PDF of this section

Click here to return to the Section Items page

 

 

Archive Folder Section Items

Section 31-E Bramham 20th Century Estates

Description of 31-E Firbeck Road

1. Two views of Firbeck Road as it appeared after the first phase of building on its west side around 1970.

2. A 1996 photo of the first batch of houses to be completed on the eastern side of Firbeck Road in 1996 and of the, as yet undeveloped, land in 1997.

3. One of the new houses being built plus a shot of the concrete piles being used to stabilise the house which were being erected on land formerly designated as a flood plain

4. Photos of the houses built on the eastern side of Firbeck Road, alongside the Beck, and of this flood plain paddock before development commenced.

5. A photo of the third and last phase of building in 1998-99 together with a shot of the land as it used to be with the highland cattle belonging to Tony Clegg (of The Old Hall) grazing on it.

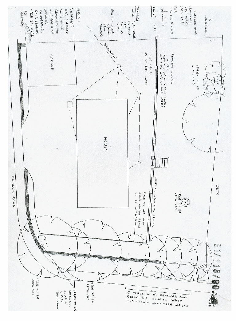
6. & 7. Ground plans of No.41 Firbeck Road associated with planning application for removal of trees.

 

 

Go Back
Useful links ....

Bramham Village Website
Bramham Park
Bramham Parish Council
Historic Britain
Bramham Horse Trials
Luminarium - Henry Percy
Old Maps of Bramham

More Links ....

Leeds Music Festival Website
Download Adobe Acrobat Reader

Menu Items ....

Where We Are Map
Search The Site
Contact Us
Copyright
Data Protection
Terms and Conditions
Accessibility

" "   Protected by Copyscape DMCA Copyright Detector